Bilocale in vendita

Sarre, Frazione Poinsod
€ 135.000
2 locali 2 locali
90 Mq 90 Mq
1 bagno 1 bagno

Bilocale in vendita

Sarre, Frazione Poinsod

Descrizione annuncio

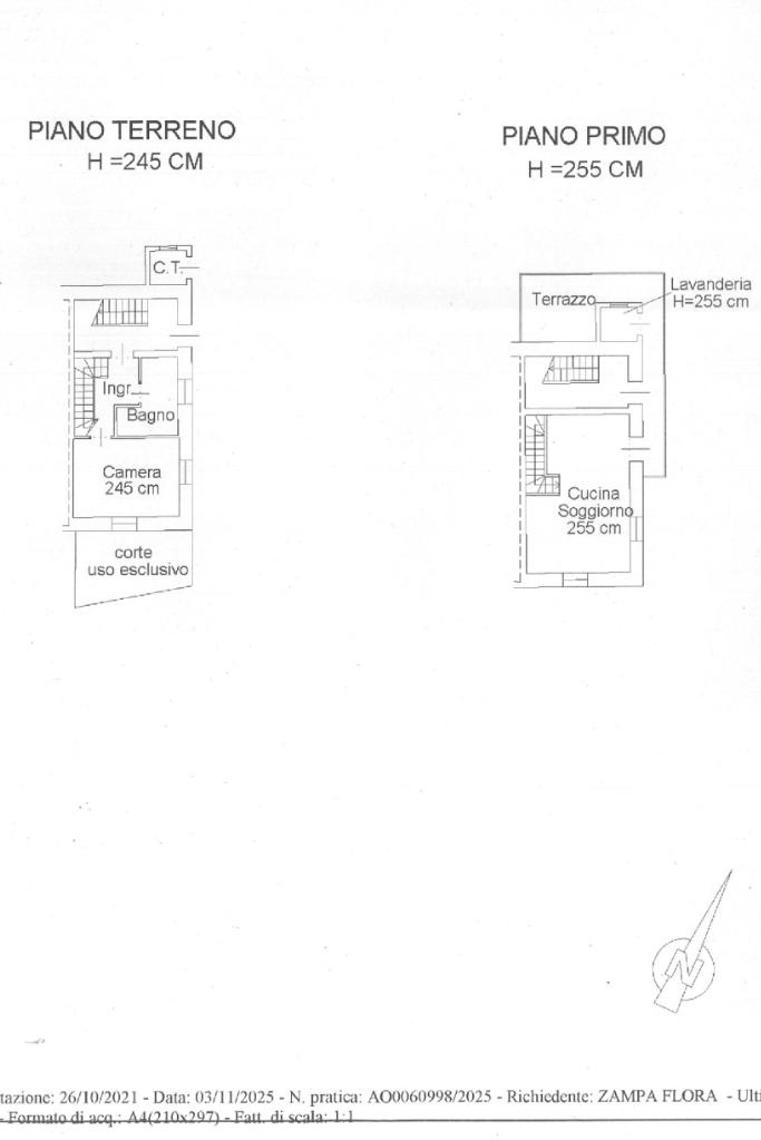
Nel comune di Sarre, a soli due minuti da Aosta, è disponibile un accogliente immobile in vendita, ideale per chi cerca comodità e praticità. Questa abitazione, si sviluppa su più livelli e offre una superficie di 77 mq. Al suo interno, troverete due locali ben distribuiti, tra cui una camera da letto e un soggiorno con angolo cottura con accesso su balcone con esposizione a est. Il bagno è funzionale e ben tenuto. L'immobile, internamente è stato ristrutturato nel 1994, è dotato di riscaldamento autonomo, garantendo comfort e gestione indipendente dei consumi. Un balcone offre uno spazio esterno per momenti di relax. La proprietà include anche una taverna di 20 mq ad una piccola cantina , ideale per cene conviviali o momenti di svago. Non ci sono spese condominiali e il posto auto esterno è un ulteriore vantaggio. L'alloggio è arredato e si trova vicino ai servizi di prima necessità, rendendolo una scelta pratica e conveniente.

Mostra tutto

Nelle vicinanze

Trasporto pubblico Trasporto pubblico
Aosta Viale Europa
Aosta Viale Europa
1,2 Km
Aosta Istituto
Aosta Istituto
2,0 Km
La Grenade
La Grenade
30 m
Sarre - Clou Ru de Doire
Sarre - Clou Ru de Doire
290 m
Ricariche auto elettriche Ricariche auto elettriche
Duferco Municipio di Gressan
980 m
Duferco Saint-Martin de Corleans Ex maternità
1,5 Km
Duferco Aosta Piscina Comunale
1,7 Km
Duferco Saint Maurice
2,2 Km
Duferco Aosta Repubblica
2,6 Km
Scuole Scuole
Scuola primaria
320 m
Vernance Bernin
340 m
Scuole di Saint Martin
950 m
Scuola Media Cerlogne
1,5 Km
Institut Agricole Régional
1,6 Km
Farmacia Farmacia
Rovito Dottor Renato
1,3 Km
Farmacia Comunale 3
1,6 Km
Farmacia Comunale 1
2,3 Km
Farmacia Comunale 4
2,8 Km
Croix de Ville
2,8 Km
Ospedali Ospedali
Hôpital régional d'Aosta Umberto Parini
2,8 Km
Supermercati Supermercati
MD Market
220 m
Ekom Market Sarre
260 m
Conad
450 m
Carrefour Market
2,5 Km
Supermercato Gros Cidac
2,8 Km
Negozi Negozi
La Bottega SIMPLY
1,3 Km
Negozi
1,3 Km
Yamamay
2,8 Km
Farcoz Couture
2,8 Km
Mafrica
2,9 Km
Bar Bar
Café du pommier
310 m
Manila
720 m
Bar
1,1 Km
Bijiou
1,3 Km
St.Martin
1,3 Km
Ristoranti Ristoranti
L'Ancien Braconnier
640 m
Ristorante Pizzeria Il Tripoli
760 m
Bel air pizzeria
970 m
Avalon
1,3 Km
Brasserie de la Rionda
1,3 Km
Mostra tutto

Caratteristiche

Rif.:
61133801
Piano:
2 di 3 (Piano su più livelli)
Posti auto:
1
Balconi:
1
Camere da letto:
1
Arredamento:
Completo
Mostra tutto
Prezzo Prezzo
€ 135.000
Rata mutuo Rata mutuo
€ 629 / mese
Spese annue Spese annue
€ 0
Proponi il tuo prezzoProponi il tuo prezzo
Immobile valutato con T·Valuta

Classe Energetica

E
E
E
E
E
E
E
E
E
EP globale non rinnovabile:
288.36 kW h/m² anno
EP globale rinnovabile:
288.36 kW h/m² anno
EP invernale del fabbricato:
EP estiva del fabbricato:
Anno di costruzione:
1967
Riscaldamento:
Autonomo
Tipo impianto:
A radiatori
Tipo alimentazione:
Metano

Ti interessa visionare l'immobile?

Fissa un appuntamento  Fissa un appuntamento

Richiedi informazioni

* Questi campi sono obbligatori

Calcola il tuo mutuo

Semplice e senza impegno
Anticipo

( % )
Mutuo

( % )

pochi semplici passi

inserisci i tuoi dati
Questionario completato
Grazie per aver richiesto un appuntamento senza impegno con un nostro Consulente del Credito e Assicurativo.

Hai inserito correttamente tutti i dati necessari e a breve riceverai una e-mail con un link da convalidare per inviare i tuoi dati.
Affiliato
Immobiliare Sarre Sas
Fraz. La Grenade, 60 11010 Sarre (AO)

Il nostro staff


  • Agostino Nicotera
    Affiliato

  • Antonio Giannotti
    Responsabile

  • Olivia Metastofole
    Coordinatrice
Fraz. La Grenade, 60 11010 Sarre (AO)
Zona: Sarre-Cogne-Saint Pierre-Villeneuve
Mostra su mappa
Orari: Da lunedì a venerdi dalle 9:00 alle 12:30 - 14.30 - 19:30 Sabato dalle 9:00-12:30- 14:30-19:00
Affiliato
Immobiliare Sarre Sas
Fraz. La Grenade, 60 11010 Sarre (AO)

2025 Tecnocasa Franchising S.p.A. - P. IVA 08365160152 - Via Monte Bianco 60/A 20089 Rozzano (MI). Ogni agenzia ha un proprio titolare ed è autonoma. Privacy policy | Policy utilizzo | Cookie policy